Ihre Suchergebnisse

SZENEVIERTEL, NOLLENDORFPL. & WINTERFELDPL. MITTEN DRIN U. DENNOCH RUHIGE WOHNLAGE, TOLLEM GRÜNBLICK

199.000 €
Favorit

Übersicht

  • Aktualisiert am:
  • September 22, 2025
  • 199.000 €
  • 1 Schlafzimmer
  • 1 Badezimmer
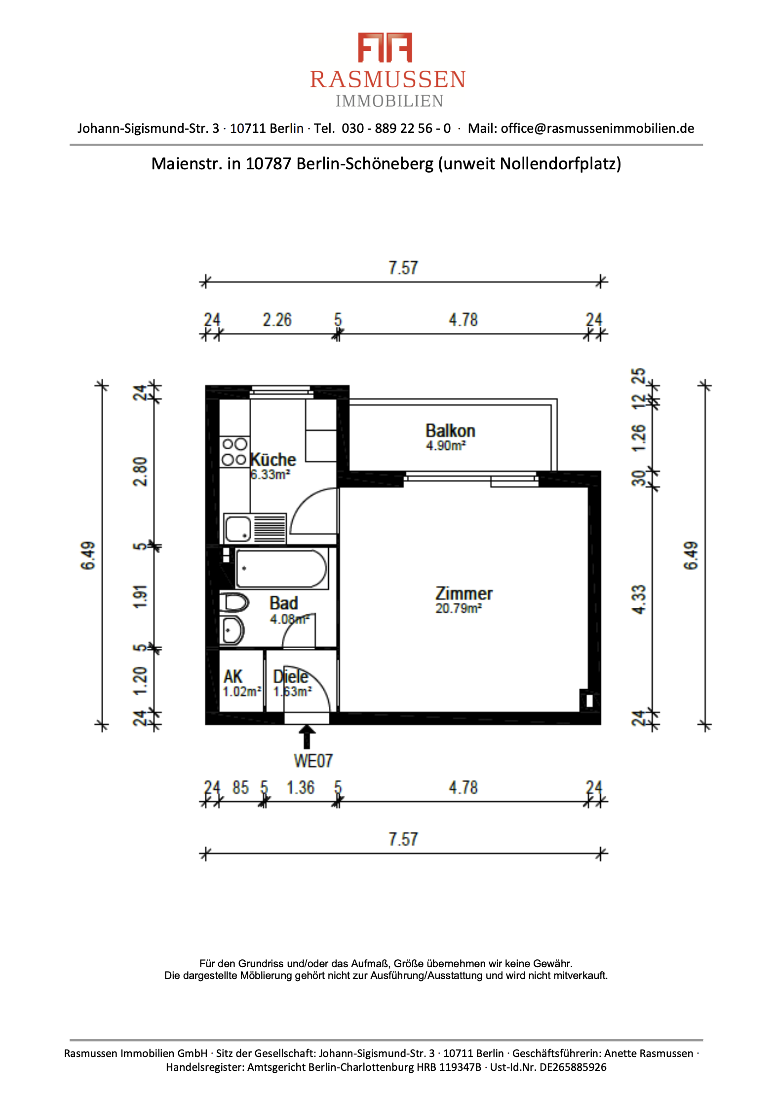
  • 36 m2 Wohnfläche ca.
  • Baujahr: 1963

Adresse

Stadt:
Bereich:
PLZ: 10787
Land: Deutschland

Beschreibung

Charmante, helle 1-Zimmer-Wohnung mit großem Balkon in ruhiger Toplage nahe Nollendorfplatz.  Diese sehr gut geschnittene und äußerst helle 1-Zimmer-Wohnung überzeugt durch ihre ruhige Lage, ihren effizienten Grundriss und einen großen, sonnigen Südbalkon, der zum Verweilen einlädt.

Das gepflegte Wannenbad sowie ein separater Kücheraum mit Fenster und Blick ins Grüne bieten charmante Gestaltungsoptionen für individuelle Wohnideen.

Ein Kellerabteil gehört ebenfalls zur Wohnung und bietet zusätzlichen Stauraum.

Die Wohnung wird im Ist-Zustand verkauft – ideal für Eigennutzer oder Kapitalanleger mit Gespür für Potenzial. Im Jahr 2025 wurden die Gartenfassade sowie alle Balkone des Hauses umfassend renoviert – ein klarer Pluspunkt für Werterhalt und Wohnqualität.

Die Lage spricht für sich: In einer sehr zentralen, dennoch ruhigen Wohnstraße gelegen, erreichen Sie sowohl den Nollendorfplatz als auch den beliebten Winterfeldplatz in nur fünf Gehminuten. Einkaufsmöglichkeiten, Cafés, Restaurants und kulturelle Angebote liegen direkt vor der Tür – urban und dennoch entspannt. Wichtig: Die Wohnung befindet sich im Milieuschutzgebiet Tempelhof-Schöneberg – Wittenbergplatz, was bestimmte Umbaumaßnahmen reglementiert, gleichzeitig aber den Charakter des Quartiers langfristig schützt. ___________________________________________

Charming, bright 1-bedroom apartment with a large balcony in a quiet, prime location near Nollendorfplatz.  This very well-designed and extremely bright 1-bedroom apartment impresses with its quiet location, its efficient floor plan, and a large, sunny south-facing balcony that invites you to linger.

The well-maintained bathroom with a bathtub and a separate kitchen area with a window overlooking the greenery offer charming design options for individual living ideas.

A basement compartment is also included in the apartment and offers additional storage space.

The apartment is being sold as-is – ideal for owner-occupiers or investors with a keen eye for potential. In 2025, the garden façade and all balconies of the building were extensively renovated – a clear advantage for value retention and quality of life.

The location speaks for itself: Located on a very central, yet quiet residential street, you can reach both Nollendorfplatz and the popular Winterfeldplatz in just five minutes on foot. Shopping, cafés, restaurants, and cultural offerings are right on your doorstep – urban yet relaxed. Important: The apartment is located in the Tempelhof-Schöneberg – Wittenbergplatz conservation area, which regulates certain renovations while simultaneously protecting the neighborhood’s character for the long term.

Energie-Index in kWh / m2a: 134
Energieklasse: E
A+
A
B
C
D
134 kWh/m²a Energieeffizienzklasse E
E
F
G
H

Objektdaten

Objekt ID: 20013
Preis: 199.000 €
Grundstücksgröße: 36 m2
Räume: 1
Schlafzimmer: 1
Badezimmer: 1
Baujahr: 1963

Grundrisse

Karte

Kontaktiere mich



    Kontaktiere mich



      Vergleiche Einträge

      Anette Rasmussen