Ihre Suchergebnisse

TOLLE, SEHR GROSSZÜGIGE 5-6 ZIM. ALTBAU-WHG. + BALKON UNWEIT MEYERINCKPLATZ

998.000 €
Favorit

Übersicht

  • Aktualisiert am:
  • Oktober 23, 2025
  • 998.000 €
  • 4 Schlafzimmer
  • 1 Badezimmer
  • 162 m2 Wohnfläche ca.
  • Baujahr: 1905

Adresse

Stadt:
PLZ: 10629
Land: Deutschland

Beschreibung

Attraktiver, gepflegter City-Altbau in unmittelbarer Nähe zum Kurfürstendamm. Der Adenauerplatz und der beliebte Meyerinckplatz sind bequem zu Fuß erreichbar. Ideal für alle, die das pulsierende Stadtleben genießen möchten!

Energie-Index in kWh / m2a: 125,8
Energieklasse: D
A+
A
B
C
125,8 kWh/m²a Energieeffizienzklasse D
D
E
F
G
H

Objektdaten

Objekt ID: 19947
Preis: 998.000 €
Grundstücksgröße: 162 m2
Räume: 5
Schlafzimmer: 4
Badezimmer: 1
Baujahr: 1905
Energieausweistyp: Verbrauchsausweis
Energieeffizienzklasse: D
Endenergieverbrauch: 125,8 kWh/(m²*a)
Heizungsart: Zentralheizung
Wesentliche Energieträger: Gas
Energieausweis: liegt vor
Baujahr laut Energieausweis: 1905

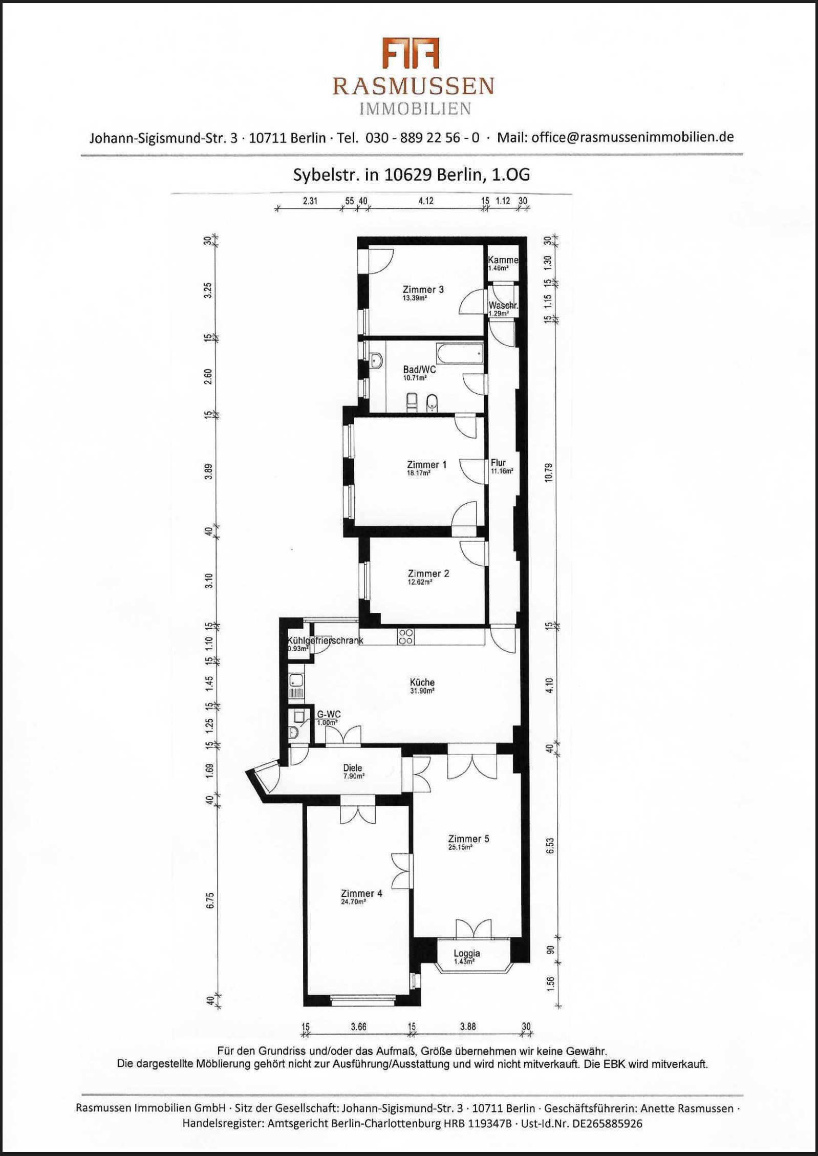
Grundrisse

Grundriss Wohnung

Karte

Kontaktiere mich



    Kontaktiere mich



      Vergleiche Einträge

      Anette Rasmussen