Ihre Suchergebnisse

UNWEIT TEMPELHOFER FELD – TOLLE 2,5 ZIMMER WOHNUNG MIT BALKON

289.000 €
Gottlieb-Dunkel-Str. 1A, ,
Favorit

Übersicht

  • Aktualisiert am:
  • Oktober 23, 2025
  • 289.000 €
  • 1.5 Schlafzimmer
  • 1 Badezimmer
  • 57 m2 Wohnfläche ca.
  • Baujahr: 1937

Adresse

Adresse: Gottlieb-Dunkel-Str. 1A
Stadt:
Bereich:
PLZ: 12099
Land: Deutschland

Beschreibung

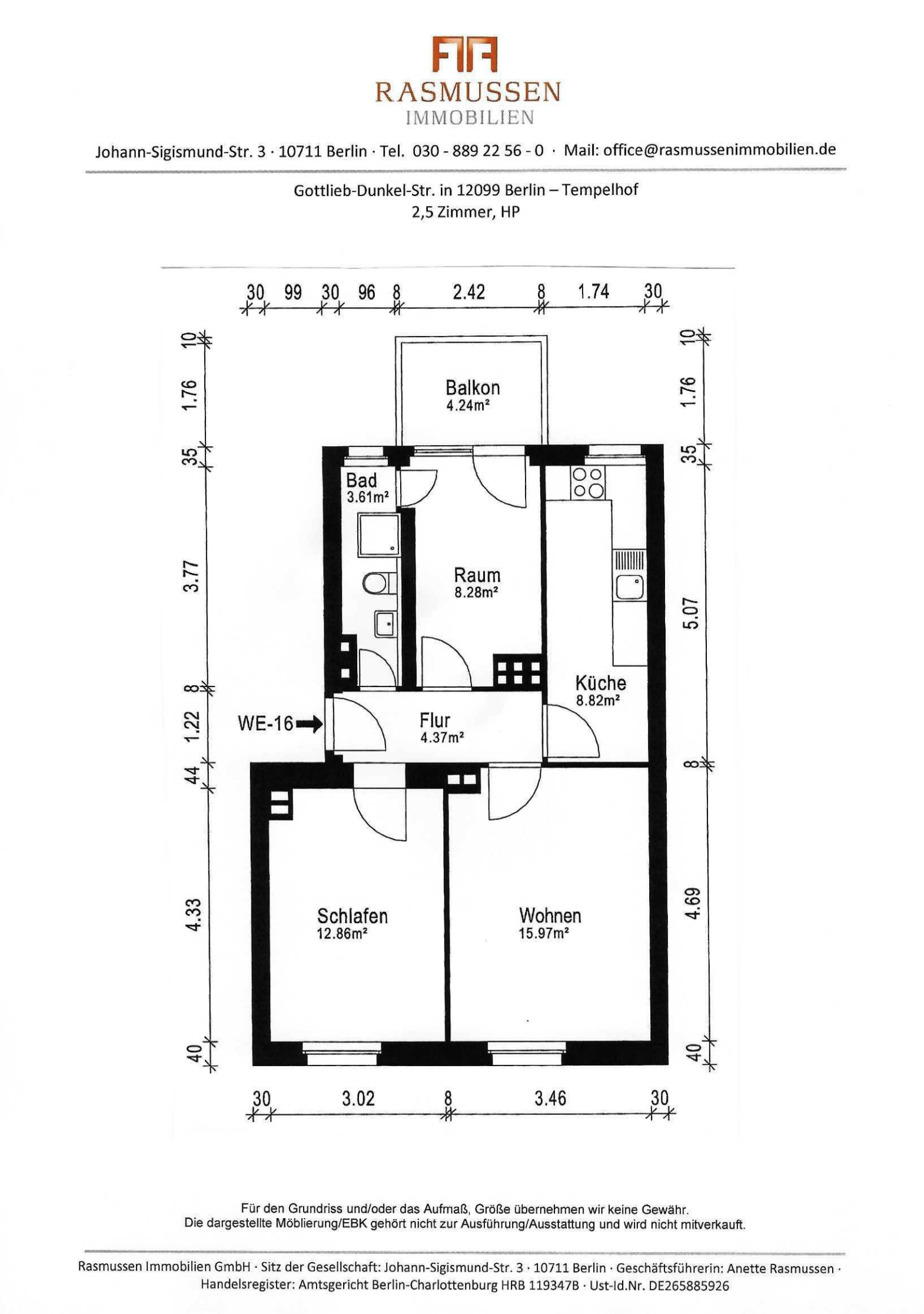
-Tolle helle Wohnung mit 2-3 Zimmer und einem gr. Balkon.

-Die Wohnung befindet sich in einer gepflegten Wohnanlage aus 1937 mit sehr großzügigem grünem Innen-Gartenbereich im Hochparterre

-Die Wohnung hat überall tolle neuere Kunsstoffenster.

-Eine tolle Einbauküche mit Kühl- und Gefrierfach, Waschmaschine, Geschirrspüler sowie eine kleine Abstellkammer.

Von hier gelangen Sie auf den Balkon der zum verweilen in der Nachmittagssonne einlädt.

-Das Badezimmer hat eine Dusche und ein Fenster für Frischluft.

-Das Wohnzimmer bietet Platz für eine gemütliche Sitzecke und einen Esstisch.

-Die Möbeln/Gardinen können bei interesse fast alle mit übernommen werden!!!

-Der Eingangsbereich ist hell und praktisch.

-Ein großzügiger Kellerraum gehört zur Wohnung dazu.

-Die Wohnung ist sehr sauber und gepflegt, bereit zum Einziehen ab dem 01.09.2025.

-Das Objekt / Wohnung wird mit einer Zentralen Fernwärmeheizung beheizt.

Energie-Index in kWh / m2a: 120
Energieklasse: D
A+
A
B
C
120 kWh/m²a Energieeffizienzklasse D
D
E
F
G
H

Objektdaten

Objekt ID: 19975
Preis: 289.000 €
Grundstücksgröße: 57 m2
Räume: 2.5
Schlafzimmer: 1.5
Badezimmer: 1
Baujahr: 1937
Energieausweistyp: Verbrauchsausweis
Energieeffizienzklasse: D
Endenergieverbrauch: 120 kWh/(m²*a)
Heizungsart: Zentralheizung
Wesentliche Energieträger: Fernwärme
Energieausweis: liegt vor
Baujahr laut Energieausweis: 1937

Grundrisse

Karte

Kontaktiere mich



    Kontaktiere mich



      Vergleiche Einträge

      Anette Rasmussen